「木と建築」
SPFとは
地震保険から見る住宅の危険度比率
隅角部や T 字交さ部の耐力壁は、直交方向の壁軸力を浮き上り力に対する抵抗 力として考慮できますか?
計算事例での開口脇のたて枠軸力はどのようにして計算しているのですか?
- くぎの一面せん断降伏耐力について
- 告示の壁倍率と計算による壁倍率を加算し5倍以上にすることはできますか?
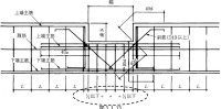
- セットバック床梁の推奨たわみの根拠は何ですか?
ツーバイ材 材寸表(KD)
- 1階床根太は寸法型式 206 以上が必要ですか?
基礎換気口回りの斜め筋の定着で40dを2か所に振り分けている理由は何ですか?
基礎換気口回りのせん断補強筋間隔を通常の 1/2 以下としている理由は何です か?
基礎梁の開口端部モーメントはどのように計算しているのですか?
構造用合板と構造用パネルのせん断強度が2種類あるのはなぜですか?
- 面材のせん断強度を決める際に、その平均値の1/3とした根拠は何ですか?
I型ジョイストは認定品以外を使用してよいのですか?
- 建築基準法37条とは
合わせ梁のシステム係数はどのようにして決めるのですか?
- 構造計算指針第Ⅱ編第1章の表1.18における、E170‐F495の数字の意味はなんですか
- 構造用集成材の許容応力度は、どのように判断して計算すればよいでしょうか。
- Hem-Fir 及び SPF のせん断弾性係数 G(N/mm2 )を教えて下さい。
間柱(スタッド)とは
- せん断弾性係数とは
気流止めとは
- 現存する日本最古のツーバイフォー住宅「旧木下家別邸」
インフルエンザにかかりにくい木造校舎
- 木は呼吸している | 調湿作用
- 明日香村キトラ古墳の保護屋根にはOSBが使われています
ツーバイフォー工法は短工期!建設後の償却も有利 | 福祉施設
ツーバイフォー耐火建築物の年度別推移
動画で見るツーバイフォー福祉施設











